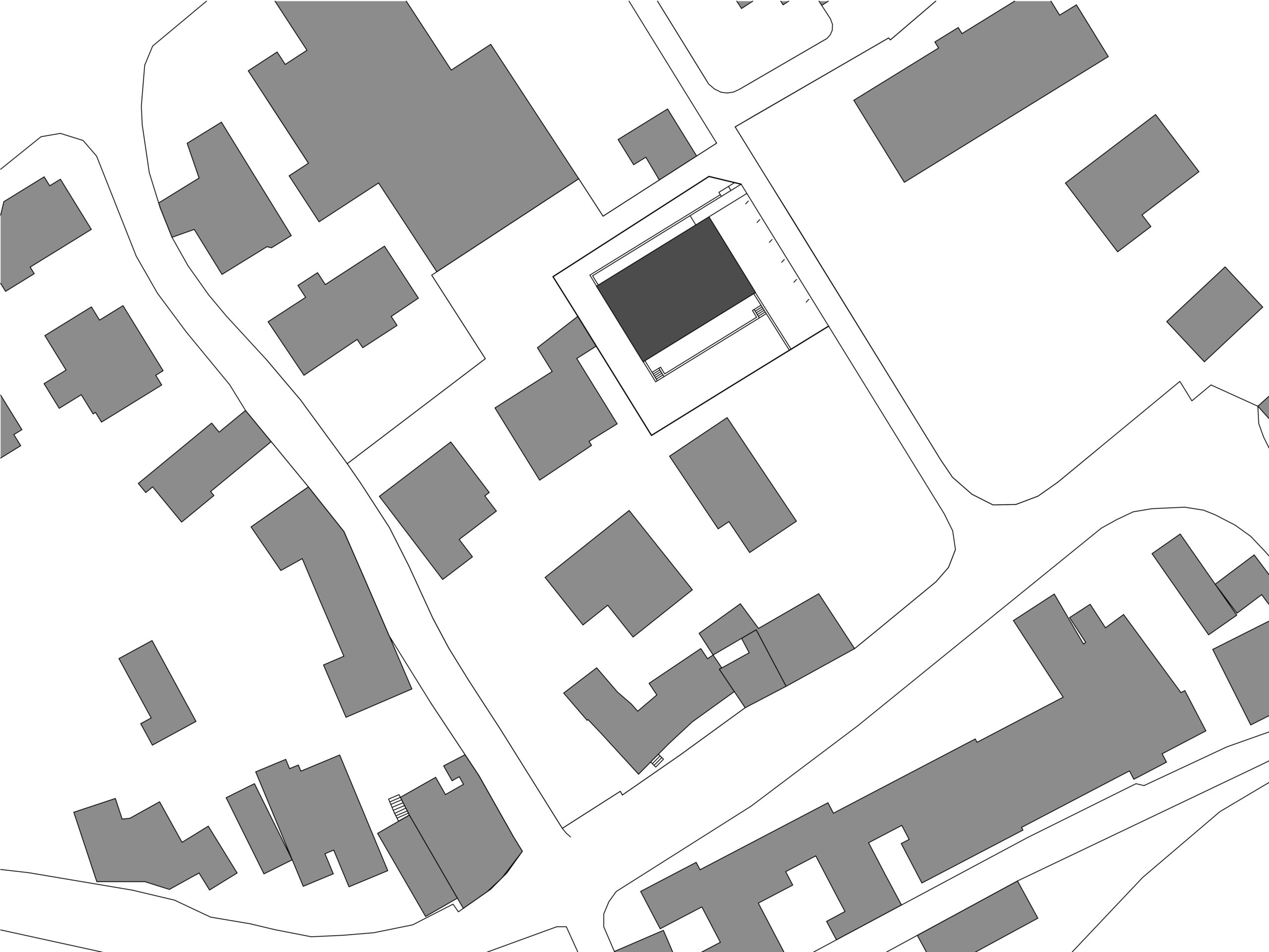
506 casa agli orti

Luogo: Minusio

Progetto: 2019

Realizzazione: 2021-2022

Genere di intervento: nuova edificazione

Committente: privato

 

indietro